リノベーションマンションのご紹介 宮の森ロジュマン
リノベーション工事が完了したマンションをご紹介いたします。

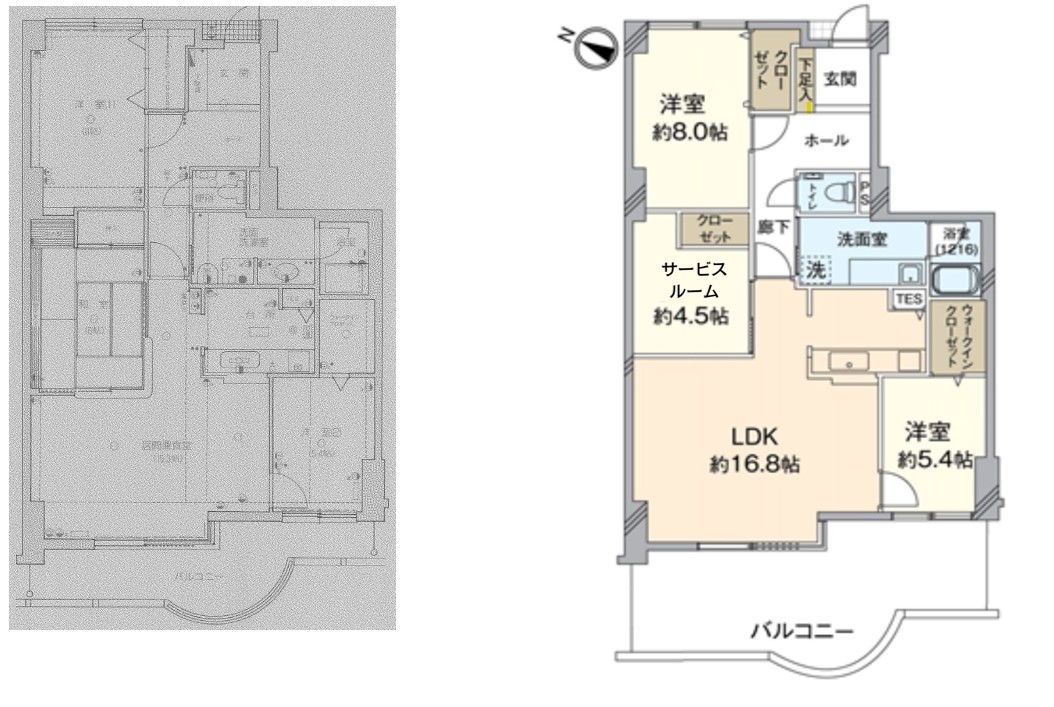
★物件概要★
・所在地:札幌市中央区北三条西三十丁目
・建築年月:昭和62年5月
・専有部分: 92.42㎡(壁芯)
・バルコニー:30.69㎡
地下鉄東西線「西28丁目」駅まで徒歩6分、「円山公園」駅まで徒歩10分、両駅はバスターミナルに直結、交通アクセス◎です。周辺には円山公園、北海道神宮などの名所があり、またスーパー、コンビニはもちろんのこと、数多くの名店も集っています。
本マンションは利便性が非常に高いエリアにありながらも、閑静で落ち着いた雰囲気の住宅街に位置しており、家族数、年齢を問わず幅広い方々へおすすめの物件です。
★リノベーション・コンセプト★
「帰る家」「変える家」
➨家に帰ることで安らぎを得られ、人により、時間により変化できる家
今回のリノベーションでは、リビングスペース、玄関等にゆとりをもたせ、お住まいになる方の個性で変化できる「機能的でありながらゆったりと過ごせる」空間作りを意識しました。
一つの部屋が「子供部屋に、仕事部屋に、パントリーに、書斎に…」住む人の生活シーンによって自由な使い方をしていただきたいと願っています。
★主な工事内容★
・玄関正面の壁面にエコカラット、収納下に間接照明を設置
・クロス、床の張り替え モノトーンデザインに統一
・洗面化粧台、トイレ、ユニットバス、システムキッチン(食洗器付)交換
・ユーティリティに用途の違う鏡を2台設置
・LDKに接した多目的なサービスルームを新設
・リビングの照明、間接照明を新設
・暖房器具交換、エアコン設置
<Before> <After>

それでは、今回のリノベーション内容をピックアップしてご紹介いたします!
➀リビング横の多目的室(旧和室)
リビング横の和室を廃し多目的室(サービスルーム)に変更、独立性をもたせ、且つ可変性の高いスペースと しました。




➁リビング
主照明をダウンライトに変更、「クールからウォームへ」切り替えにより色は2種類から選べます。梁を利用した”コーブ照明”を造作、光源が直接見えず落ち着いた雰囲気を演出、リラックスした時間を過ごせます。


➂玄関
家の顔である玄関では、下足入を浮かせ間接照明を設置。正面の壁にはデザイン性と機能性を兼ね備えたエコカラットを採用、上質な空間を演出。エコカラットは「調湿・脱臭機能」に優れ、帰宅が楽しみになります。



〇内装写真〇



いかがでしたでしょうか。私どもエムズワールドは、お住まいになる方のライフスタイルに寄与するため、リノベーションを通じて新たな価値を提供しています。
今後もリノベーション物件などの情報を都度お知らせして参りますので、よろしくお願いいたします!
詳細はこちら:宮の森ロジュマン
(物件担当:齋藤 康太)
